VENDITA AMPIO SPAZIO COMMERCIALE IN ZONA FIERA VERONA

210.000 €
600 m²
Superficie
2
Locali
1
Bagni
in vendita
negozio
Verona
Descrizione
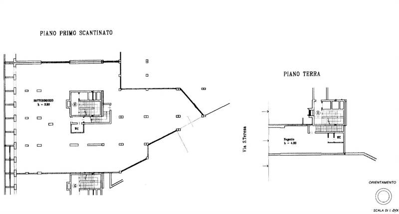
In zona borgo Roma a Verona, nei pressi della Fiera, vendita ampio spazio commerciale situato al piano interrato, ma accessoriato di grandi finestre in bocche di lupo, di ca. 600 mq, offrendo ampi spazi e diverse possibilità di utilizzo.

Pratico accesso con doppia basculante.

Altezza max interna circa 3,51 mt
Altezza max corsello interrato circa 2,74 mt
Portata pavimento interrato 3,5 t
Caratteristiche principali
Codice:
V000299
Città:
Verona
Categoria:
Negozio
Locali:
2
Bagni:
1
Mq:
600
Classe energetica:
E
Stato Immobile:
Buono
Planimetrie
Mappa
Via Santa Teresa - Verona (VR)
Cookie preference