UFFICIO COMMERCIALE IN VENDITA IN ZONA FIERA VERONA

190.000 €
70 m²
Superficie
1
Locali
1
Bagni
in vendita
ufficio
Verona
Descrizione
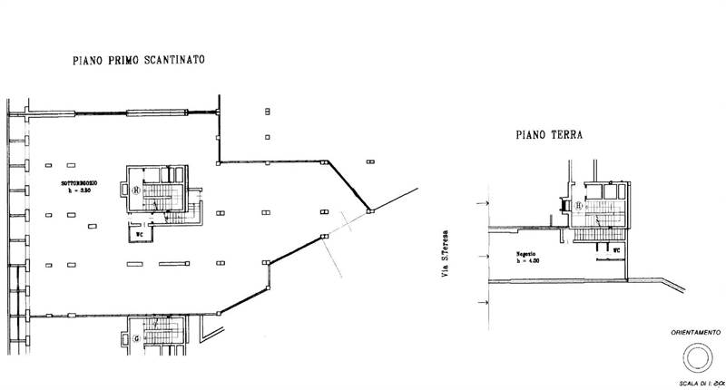
In zona borgo Roma a Verona, vendita ufficio commerciale situato al piano terra di ca. 70 mq, con vetrina ed accesso diretto dalla strada.

La sua posizione strategica e le 2 vetrine espositive lo rendono perfetto per attività commerciali o di servizio che desiderano una forte visibilità.
Caratteristiche principali
Codice:
V000298
Città:
Verona
Categoria:
Ufficio
Locali:
1
Bagni:
1
Mq:
70
Classe energetica:
E
Stato Immobile:
Buono
Planimetrie
Mappa
Via Santa Teresa - Verona (VR)
Cookie preference