SPAZIO COMMERCIALE

399.000 €
658 m²
Superficie
3
Locali
2
Bagni
in vendita
negozio
Verona
Descrizione
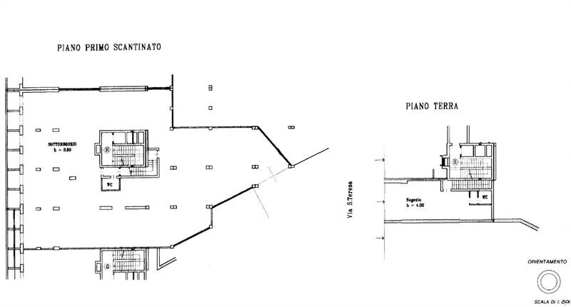
In zona borgo Roma a Verona si trova questo spazio commerciale sviluppato su due piani, così diviso: piano terra di 56 mq e piano interrato, ma accessoriato di grandi finestre in bocche di lupo, 602 mq per un totale di 658 metri quadrati tutti con destinazione commerciale (C1), offrendo ampi spazi e diverse possibilità di utilizzo.
Attualmente è suddiviso in 3 locali e 2 bagni, ma grazie al suo layout flessibile può essere facilmente adattato alle esigenze dell'acquirente. La sua posizione strategica e le 2 vetrine espositive lo rendono perfetto per attività commerciali o di servizio che desiderano una forte visibilità.
Le stanze sono separate da uno spazio open space, che favorisce la massima flessibilità nella suddivisione degli ambienti e nella loro utilizzazione. Le attività consentite in questo immobile sono quelle di categoria C1, ossia commerciali e di servizi, che permettono di svolgere una vasta gamma di attività commerciali, artigianali e di servizio. Classe energetica E che permette un notevole risparmio sui costi di gestione.
Combinazione perfetta di posizione strategica, spazi ampi e flessibili e possibilità di personalizzazione per una vasta gamma di attività.
Altezza max interna circa 3,51 mt
Altezza max corsello interrato circa 2,74 mt
Portata pavimento interrato 3,5 t
Caratteristiche principali
Codice:
V000190
Città:
Verona
Categoria:
Negozio
Locali:
3
Bagni:
2
Mq:
658
Classe energetica:
E
Stato Immobile:
Buono
Numero Vetrine:
Due
Planimetrie
Mappa
Via Santa Teresa - Verona (VR)
Cookie preference